返回首页
你现在的位置: > 首页 > 企业动态 > 正文

3大核心优势助力提质增效!中信博PSS系统解锁柔性支架排布的高效率模式

发布日期:2024/6/5


       当前随着光伏产业的快速发展,优质用地越来越少、光伏电站用地环境复杂,坡度大植被高的山地、水位深跨度大的鱼塘等环境成为越来越多成为光伏开发的主要阵地,柔性支架应运而生。


       柔性支架使用场景复杂,传统柔性支架排布往往要耗费2-3天时间,中信博作为支架龙头关注行业效能提升需求,率先研发并推出柔性支架快速排布软件PSS,设定系统参数后,数秒内可快速完成复杂场景下柔性支架一键排布,大大节省人力及时间,为光伏电站降本增效。


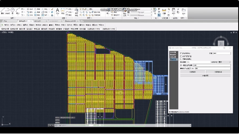
       1.ARCTECH

       PSS系统,3大核心优势助力提质增效


       PSS软件是由中信博风工程研究院院长陈昌宏博士及其团队最新研发的排布解决方案,适用于污水处理厂、鱼塘、养殖场等多种地形条件下的柔性支架排布设计。以全面参数化定制、地形分析秒速响应、项目总容量快速统计等几大核心优势,极大提升排布效率。


       优势一:全面参数化定制


       用户可自由定义组件板尺寸、组件板倾角、支架首选跨度、支架最大跨度限值、项目地经纬度等关键参数,系统智能确定排与排之间的最优间距,同时生成柔性支架模型,为支架排布提供坚实保障;


自定义参数


       优势二:地形分析秒速响应


       PSS软件可通过图层迅速识别红线、厂房边界线、鱼塘边界线、高压线、地下管道等特征,依据自定义边界距离要求及光伏支架排布方向,即刻自动生成精准的柔性光伏支架排布图;同时针对复杂地形,可以通过调整软件排布方式,如勾选首跨可变跨径、次跨可变跨径等条件,生成更合理的柔性支架排布图,提升项目效率;


地形秒速响应,生成排布图


       优势三:项目总容量快速统计


       PSS软件生成排布图后,可自动统计其中支架跨度及组件数量信息,快速计算项目总容量,以便用户对项目的经济性进行分析。同时,PSS软件还可自动统计边立柱和中立柱的个数,方便进行支架成本核算。让用户轻松掌握项目经济性,为投资决策提供有力支持。


 项目容量快速统计



       2.ARCTECH

       中信博柔性支架,探索光伏的无限未来


        面对当前光伏产业的难点与挑战,可以突破地形局限的柔性支架逐步成为引领行业发展的新趋势。中信博秉承“科技赋能,引领产业发展”的使命,立足客户及市场需求、精研柔性支架产品稳定性提升,同时以强大的研发实力护航产品领先行业。


       企业自主投资建设了风洞实验室、研发“三维地理信息系统GIS+数值风洞CFD仿真”应用技术。在这座光伏企业唯一自主拥有的风洞实验室内,可进行世界领先的结构静压和结构动力响应测试能力,同时可建立企业核心技术数据,为中信博柔性支架的产品设计提供基本设计参数,指导产品的研发和产品结构设计验证。



       SNEC展会临近,中信博以领先的研发实力及市场洞察力,关注传统柔性稳定性、电站发电增益度需求,即将首创性推出柔性跟踪支架新品,集大跨度、高净空、高温定性及发电增益度于一体,不断创新以实现产业升维,实现柔性支架在复杂场景下的全生命周期稳定性、可靠性提升及电站全生命周期运维收益率及满意度。


来源:中信博新能源

[←返回]

关于我们   |   关于合作   |   留言板   |   资料下载   |   广告服务  
  版权所有:南京诺溪新能源科技有限公司 苏ICP备14012130号   地址:南京金源路2号绿地之窗南广场D1栋808   
电话:025-52170985 18914486391