返回首页
你现在的位置: > 首页 > 行业动态 > 正文

提纲挈领!工商业储能开发建设全流程及“五大痛点”

发布日期:2024/4/15


       工商业储能作为参与需求响应的重要部分,迎来利好,将随着政策端给予更大支持、收益端参与市场而更具经济性、竞争力和发展动力,已成为下一个风口。当前,我国工商业储能市场处于刚起步阶段,已受到各路资本的热捧,吸引了包括家电、能源、消费电子、环保、锂电、光伏等在内多个领域企业跨界入局。以下整理了工商业储能的几个坑,希望新进入企业少走弯路。


       痛点一:投资方的高门槛


       想要进入工商业用户侧储能市场,首先得过投资方这一关。他们对用电企业的性质、行业发展前景、征信记录等都有一系列的要求。就像我们平时挑选合作伙伴一样,他们也希望找到稳定可靠、有发展潜力的企业。这样一来,许多原本有意向的企业都被拒之门外。


       痛点二:繁琐的材料准备


       项目开发阶段,投资方要求提供的材料多得让人眼花缭乱。除了常规的电费清单、企业征信报告等,还需要提供精确到分钟的负荷数据、用电情况分析等材料。这些材料的准备过程耗时耗力,对于项目团队来说无疑是一个巨大的挑战。


       痛点三:投资方的漫长流程


       提交了材料后,接下来就是漫长的等待期。投资方的流程复杂且漫长,从初步接触到最终签约,往往需要经历数月甚至更长的时间。在这个过程中,项目团队需要耐心等待,并与投资方保持密切沟通。


       痛点四:有限的经济利益


        说实话,工商业储能能给企业带来的直接经济利益确实有限。对于大多数用电企业来说,他们更关心的是如何降低用电成本和提高用电效率。因此,想要打动他们的心,我们需要拿出更具说服力的方案和案例。


       痛点五:施工难度与电力部门的复杂关系


       最后一个坑,就是施工难度了。工商业用户侧储能项目的施工需要获得电力部门的接入批复,并遵守一系列严格的电力安全规定和技术标准。此外,施工过程中还需要与电力部门建立良好的合作关系,确保项目的顺利进行。


       工商业储能系统从项目前期开发到后期建设运营,往往要经历3~6个月的时间甚至经历更久的一个时间周期,如何能有效地进行项目开发与建设,就需要我们更加熟悉与了解整个开发与实施过程。


        以下将从项目开发、项目收资、项目设计、合同签订、项目实施全流程解读工商业储能电站的开发与建设。


项目开发


       主要关注电价峰谷价差、当地政策补贴、年用电时间及用电量等因素。


       原则上选择峰谷电价价差不低于0.7元/kWh的区域,价差越大越好。


       根据当前各地区政府补贴政策,目前政策较好的区域主要集中在浙江区域、广东区域、江苏区域以及安徽等地区。

原则上企业年用电天数不低于330天,年用电量不低于600万度。


       用户生产和存储物品的火灾危险性等级为甲乙类之外。

其他方面:如厂址、配电房条件;为降低项目投资,尽可能布置在配电房附近同时需满足消防需要。


项目投资


       近12个月以上的电费清单、用电企业的用电负荷曲线、一次系统图或变压器的容量及数量、现场场地条件及面积、用电企业的工作时间与检修时间等。


电费清单


负荷曲线


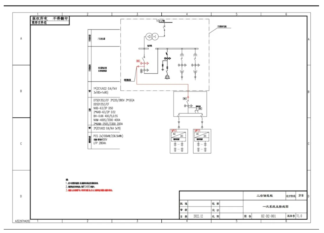
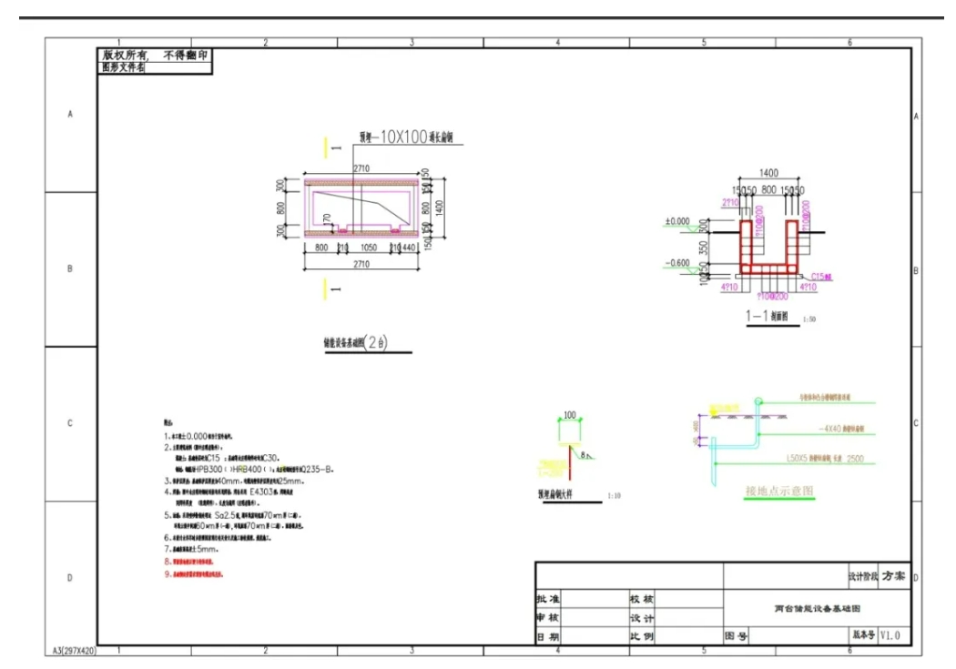
项目设计


       确定PCS功率及电池容量、电气设计、总平布置、防雷接地、消防、土建设计等。



主接线



备基础


       合同签订


       合前期收资和踏勘情况,并与用户就合作模式达成一致后,根据用户意愿可签订项目意向合作书或框架协议,同时编制项目建议书提供用户决策,并根据用户反馈意见进一步完善项目方案。

 

       在与用户就合作模式、方案等初步达成一致或签订意向合作书后,履行投资单位内部立项、决策程序,并根据内部决策要求进一步落实边界条件后,双方签订正式合作协议。


        投资单位依托所在地区已有项目公司或新设立公司作为项目的实施主体,同时作为后期办理各项手续的责任主体。

项目实施


       项目开工前需办理的手续:


       发改委项目备案(必备)


        电力接入批复(必备)


        消防设计审查(根据功率和容量确定)


         环境影响评价报告(依据当地政策)


         案评报告(依据当地政策)


         工程质量监督手续(根据功率和容量确定)


         节能审查意见(依据当地政策)


          项目竣工手续:


          建设单位组织进行建设工程验收,出具竣工验收报告。

建设单位组织进行并网验收,由检测机构出具并网检测报告,电网公司出具并网验收意见,具体以各地电网公司要求为准。


       根据储能电站规模不同,需办理建设工程消防验收或消防备案手续,具体以各地要求为准。




来源:西部碳中和新能源联盟

[←返回]

关于我们   |   关于合作   |   留言板   |   资料下载   |   广告服务  
  版权所有:南京诺溪新能源科技有限公司 苏ICP备14012130号   地址:南京金源路2号绿地之窗南广场D1栋808   
电话:025-52170985 18914486391