一起见识能 源 等 级 为 4A 的 办 公 室 建 筑
发布日期:2019/12/10
今天给大家介绍一座能源等级为A++++来自荷兰的曲面办公楼,我们一起欣赏吧该办公楼组织布局的核心在于通透感,这也是设计的重要着手点。
全玻璃幕墙最大限度地扩大了视野范围,同时加强了透光感。
立面的轮廓线也在特定的位置与其余的外墙分离,并提供遮阳篷以限制阳光的辐射。
整座建筑的电力由太阳能电池板提供;麝香草覆盖的屋顶改善了雨水的渗透情况。
控制区域空气处理机组和照明轨道检测器可以避免能源的损失和浪费。
在体量的拐角处,二层的悬臂结构突出了角落的视野与景观。
在建筑的另一侧,同一层的体量凹进,从而创造了屋顶花园并标记了主入口空间。
图纸
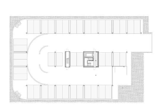
地下层平面图
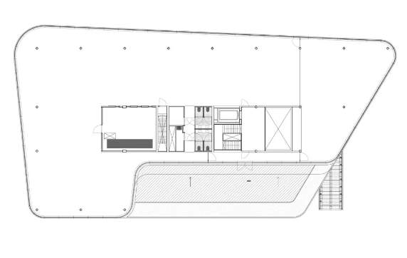
一层平面图
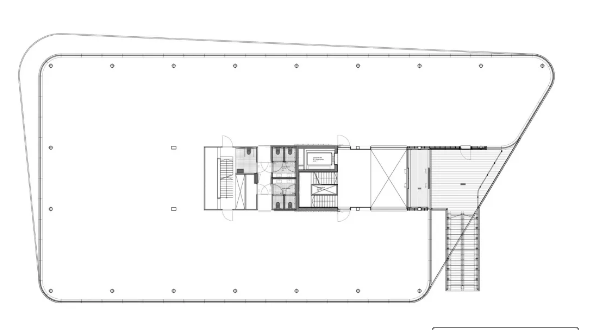
二层平面图

分析图
来源:光伏建筑